Home About Us Projects Enquiry Downloads Contact Us
 
The Perch
Project Profile Villas Club House Features Specifications Location Associates Gallery  
 

East Facing Villas

 
 
 

Area Statement 

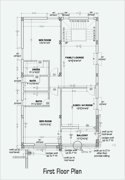
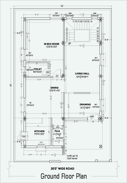
East Facing Villa
   
Plot Area = 214.00 sq.yds
   
Ground Floor = 1355.00 Sft
First Floor = 1337.00 Sft
Total Area = 2692.00 Sft
     
East Facing Brick Work plan
     
 
   
 
 
The Villas facing East and West at The Perch have been designed as per 'Vaastu', while the most diligent care has been taken to create an elegant elevation that symbolises your style and class.
 

West Facing Villas

 
 
 

Area Statement 

West Facing Villa
   
Plot Area = 214.00 Sq.Yds.
   
Ground Floor = 1355.00 Sft
First Floor = 1337.00 Sft
Total Area = 2692.00 Sft
 
Set within a lush green space, every Villa is exquisitely crafted to experience exclusivity, comfort and most importantly more space. Enjoy privacy in your private garden in a well-designed 4-bedroom row house.
 
Life is smooth with planning.

Spread over a vast area of land in idyllic surroundings, 'The Perch' is an outstanding venture of independent residential villas to promote peace, harmony, health and smooth living comfort for all the residents. It is a self-sufficient gated community combining the best international style and state-of-the-art facilities in an aesthetic environment.

Unique Speaking Points:

  • Cozy gated community with 50 Villas
  • All villas are designed as per Vastu
  • Ideally designed to suit the demands of all groups
  • Tree-lined 40ft access road and 30ft inner road
  • Clubhouse with all modern amenities
  • Underground service lines
  • Electronic security surveillance

Life is about following the right direction.

When one is sure about the goal and the purpose, the direction and the path becomes clear. Every Villa at ‘The Perch’ is designed and built with care. The East and West facing villas are an ideal example of planning for ample ventilation and free flow of breeze to lead a healthier life. The layout is planned in such a way that space gets a true meaning.

The Perch holds the key to two worlds, one - your own world that you enjoy within the cozy environs of your home and the other world - that comprises of others like you, who live in the community making it
a world of one big family.